ROBLES 192

#Bioconstruccion #reusoagua #BTC#regeneracion #permacultura #vidanatural #naturaleza
#Bioconstruccion #reusoagua #BTC#regeneracion #permacultura #vidanatural #naturaleza
2016

ROBLES 192

Jurica, Querétaro

En este proyecto residencial nos enfrentamos a cómo resolver una vivienda plurifamiliar introduciendo sistemas sostenibles que pudieran independizar la vivienda de la energía y del agua, logrando una regeneración del entorno, así como usar block BTC de tierra compactada para minimizar el impacto de los materiales y lograr calidad en el proyecto. Algunas preguntas fueron las siguientes:

•¿Cómo organizar el programa en el terreno?

•¿Cómo proyectar nuestra casa sostenible desde el inicio del proyecto para conseguir una buena ventilación, iluminación en todos los espacios y una temperatura ideal sin el uso de energía auxiliar?

•¿Cómo organizar el espacio para tener una vivencia única?


Sostenibilidad

¿Sabías que el diseño bioclimático, la arquitectura vernácula, los materiales locales, la arquitectura del pueblo y de las tradiciones, la que responde a la cultura y al clima, ha existido siempre?

No estamos reinventando, sólo entendiendo...

Ingenierías- Estudio de factibilidad

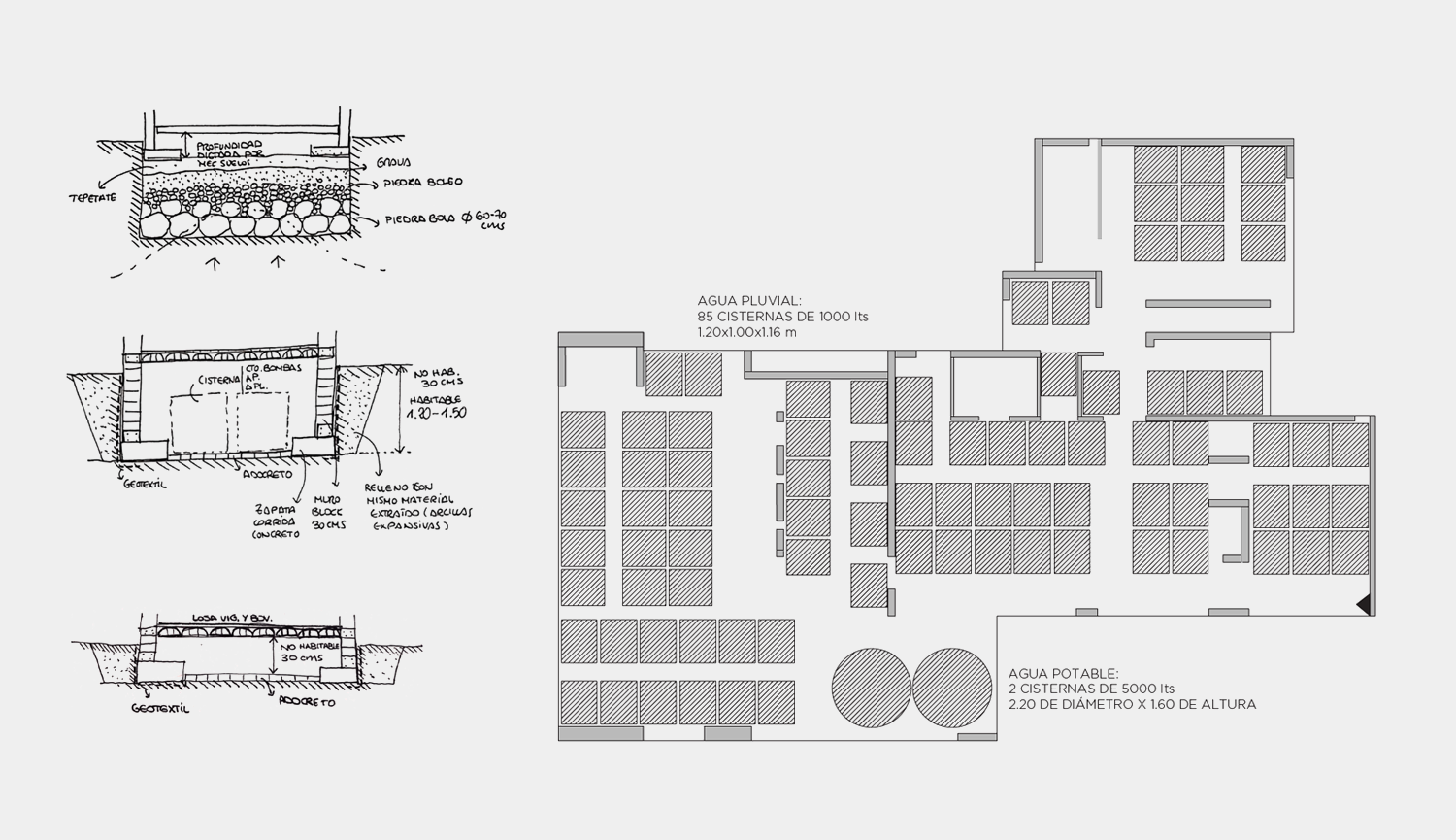
¿Qué pasa si en vez de excavar las arcillas expansivas y rellenar el suelo con una plataforma de tepetate, no usamos mejor esa excavación para albergar nuestras cisternas de almacenamiento de agua pluvial y poder ser independiente de la red de agua potable al 80%?

Materiales

Se presenta una comparativa de muros posibles para el proyecto, manifestando sus ventajas e inconvenientes así como su comportamiento térmico y costo de cada solución.

¿Podemos hacer entender a nuestro cliente la importancia de optar por una solución u otra?

Estudio de asoleamiento

Este estudio se vuelve fundamental para poder entender las condiciones interiores de iluminación, deslumbramiento y confort por ganancias solares.

Se realiza estudio de asoleamiento para entender la influencia del volado de la terraza en verano e invierno. Se estudia también la ubicación de la alberca y las sombras arrojadas de las edificaciones existentes, resultados que nos permiten concluir en la reubicación de la misma para evitar sombras.

Proyectos Relacionados

#thehubqueretaro #sportlife #sostenibilidad #reusoespacios #rehabilitación #naveindustrial #deporte #vidasana #padel #bikes

ST 23

Centro Sur, Querétaro

Concurso para reforma de nave industrial existente. Se pretende usar la nave para fines deportivos con un concepto de "street design" y de uso de materiales reciclados y prefabricados para construcción de áreas complementarias interiores. El programa incluye canchas de padel, crossfit, carriles bici que comunican con parque y lago exterior colindante, caminos de running, bikepark y locales comerciales relacionados con fitness, comida saludable, ropa sport, actividades lúdicas para niños y adultos. Todo el mobiliario se concibe con materiales reciclados, de reuso y que contribuyan a la circularidad.

#recycle #regenerativa #containers #integration #circularidad #cero

JAMADI

Zibatá, Querétaro

Este proyecto se trata de una plaza comercial itinerante en Zibatá. Se concibe el proyecto como un lugar dotado de pequeños negocios de productos sostenibles gastronómicos, de moda, de productos y servicios básicos que necesitamos día a día y con espacios de cowork que pretenden convivir con actividades deportivas, mascotas y crear una interacción natural y urbana con el parque donde se ubica, así como generar un valor agregado la sociedad. Pensado como un lugar en continua transformación, que no dañe el parque no se ubica, que permita realizar una vida al exterior, como un laberinto donde nos podemos perder y reencontrar, donde los niños y las familias encuentran un lugar al que pertenecen, un árbol, un helado, un pájaro, un cocinero que trabaja con los productos del huerto y la permacultura, un amigo haciendo yoga al aire libre, a mi mamá comprando un jugo saludable. Un espacio para todos donde poder perderme, aparecer y desaparecer, jugar y aprender, ver las montañas y descubrir el parque y la naturaleza que me rodea. Un lugar donde todo el desecho se aprovecha en las áreas verdes, donde toda la energía proviene de los techos solares, donde la estructura se recicla y reinventa, donde la naturaleza se pretende fusionar con nosotros y nosotros con ella.

#prefabricados #modular #ceroresiduos #circularidad #ceromantenimiento #panelessolares #regeneración #Diseñodisruptivo #reutilización #seguridad

CAM 27

El Campanario, Querétaro

Vivienda plurifamiliar de 1030 m2 construidos. El sistema constructivo se concibe en piezas prefabricadas de concreto gris oscuro con el fin de agilizar tiempos de obra y aprovechar todas las ventajas de la construcción prefabricada. Se plantea un despiece de 154 piezas de 3 a 11.50 m de altura para muros y de 54 losas de 5 x 3 m para entrepiso y losa de azotea con todas las instalaciones ocultas desde fabricación en las piezas. Se realizan 2 propuestas de terraza y en base a los análisis de asoleamiento y de confort, se toma una decisión de proyecto. Se estudia la fachada oeste para entender cómo influye el sobrecalentamiento y cómo protegerla con la celosía propuesta.

#sostenibilidad #industria #panelessolares #reusoaguapluvial #camaratermografica #ahorroenergetico #prefabricado #modular #concreto

TER69

Querétaro

Nave industrial prefabricada. Se realiza el montaje de los muros de 10 cms de espesor en 11 dias. Consta de un área de bodega grande, un área de almacenamiento cerrado, oficina en planta baja, baños y un mezzanine. Se plantea el diseño con un sistema constructivo prefabricado que nos permite agilizar tiempos en obra, evitar el desperdicio de material y contribuir a un proyecto que minimiza los residuos, lograr confort en el interior y evitar el mantenimiento a futuro. En agua, se plantea la reutilización de agua de lluvia filtrada para inodoros y riego. En energía, se introducen paneles solares con microinversores para posibilitar el crecimiento de la instalación a futuro. En la cubierta se instala un panel sandwich. Se realizan pruebas de medición de temperatura, humedad, y de temperaturas superficiales de los paramentos de cubierta y fachadas, comparándolo con las bodegas aledañas. En lo que respecta a la iluminación natural, se realiza un análisis lumínico para determinar el tipo de domo a introducir en la cubierta.

#sostenibilidad #Prefabricados #concreto #modular

LCP 30

Milenio III, Querétaro

Casa unifamiliar ubicada en Querétaro. Concebida desde la respuesta bioclimática, la privacidad, la vivencia de un espacio integral y de funcionamiento práctico y cómodo de la vivienda, se toma como decisión clave de proyecto la introducción de un patio que permite configurar la experiencia de vivir en este lugar. En este proyecto se decidió optar por un sistema constructivo prefabricado. Elaboramos los planos de fabricación de 122 paneles verticales y horizontales de concreto de 17 cms, los fabricamos en 35 días y montamos todas las losas y muros en 9 días in situ utilizando técnicas de unión precisas y rápidas. La construcción prefabricada con concreto consiste en crear elementos de concreto en una fábrica o lugar fuera de la obra y luego transportarlos y ensamblarlos en el sitio de construcción. Con este sistema constructivo logramos reducir el tiempo de construcción, mejoramos la calidad y la precisión, y minimizamos los residuos. El diseño de la vivienda se pensó desde una concepción industrial, de experimentación del material, pero se buscó la calidez introduciendo elementos en madera.

#sostenibilidad #fraccionamientosustentable #urbanismo #verde #parquesurbanos #carrilbici #sentir #saludinterior

ENTREVALLES RESIDENCIAL

Corregidora, Querétaro

Condominio residencial de 102 lotes frente a parque de Cimatario. Este proyecto nace de la idea de ser un lugar que fomenta la biodiversidad, respeta la fauna y flora del área protegida colindante del CIMATARIO. Lugar sostenible para vivir, verde, rodeado de naturaleza, con andadores peatonales que conectan todos las amenidades del fraccionamiento. Se genera una guía de prototipos de fachada, protecciones solares, % de acristalamiento para lograr el confort la mayor parte del año sin recurrir a un sistema de climatización. Viviendas con doble fachada, donde los árboles tienen una función fundamental: arbolar las principales vías de acceso, dar privacidad de unos lotes frente a otros, generar en las áreas traseras de las casas espacios verdes peatonales que permitan independizar las rutas caminando de las rutas vehiculares. La parte urbana del macrolote fue un requisito imprescindible para poder lograr la movilidad sostenible en todo el conjunto. Carriles bicis conectan cada una de las viviendas con el parque aledaño de ENTREVALLES y con el parque-área natural protegida del CIMATARIO. El respeto por la naturaleza, el silencio y la conciencia medioambiental como estilo de vida se vuelve fundamental en este lugar. Respeto por el agua, y por la energía. Se pretende gestionar el agua potable con el agua tratada del fraccionamiento e introducir un sistema de generación de energía limpia por medio de paneles solares. Recordemos que donde hay naturaleza, hay paz, hay salud y regresamos a nuestra esencia. El lugar donde crecemos lo es todo para regenerarnos como personas.